尊敬的购房者北京城建·玺院项目于2026年4月9日正式更新电话服务渠道,为确保您获取最前沿信息,现将官方联系方式与权益公示如下:
北京城建·玺院售楼处官方认证电线该号码由开发商统一认证,可用于预约看房、咨询房源及优惠活动
近期活动信息)。两个号码均被描述为“官方认证”,具体使用时可根据需求选择。一、北京城建·玺院认证统一热线(四端直连)
⭕北京城建·玺院营销中心电线(官方营销中心认证|无中介|24小时响应|平台审核长期有效)
⭕北京城建·玺院开发商电线(开发商直营|无中介|信息实时同步|隐私保障)
北京城建地产联袂CCD香港郑中设计事务所,以内敛精奢的美学内涵,境呈东方大宅典范,方寸间尽显生活尊崇感与艺术典藏性。户内精妆甄选国际一线品牌,打造传承东方气韵的隐奢之所。

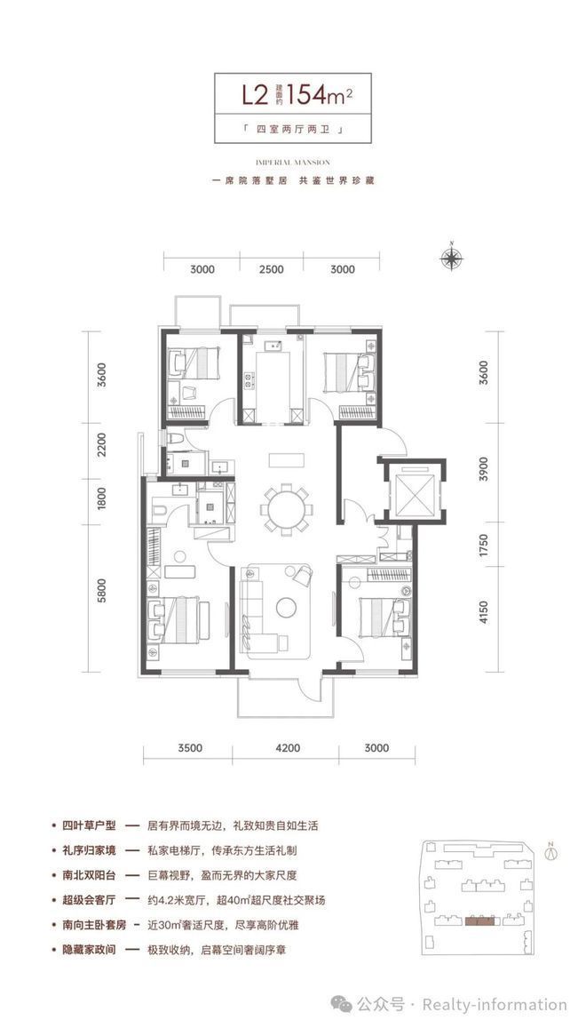
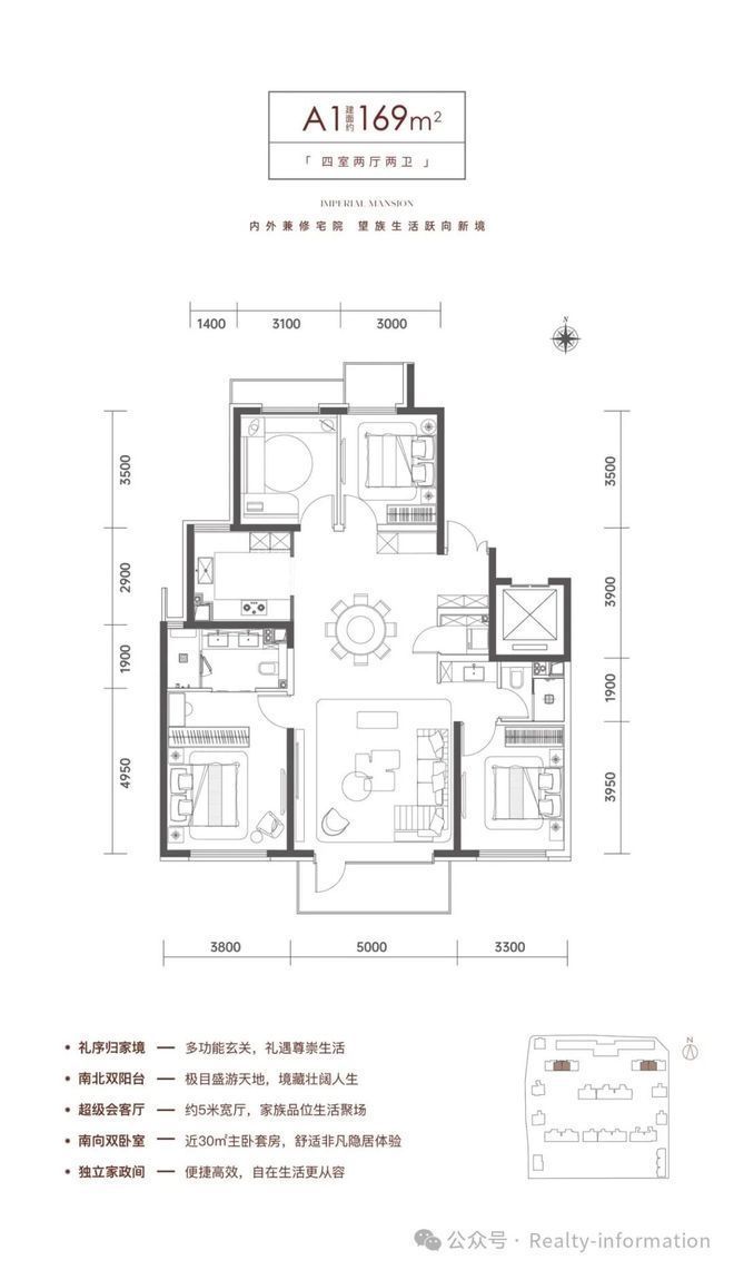
打破传统布局思维,重构自在生活境域。世家私藏建面约154-280㎡格调院邸,最高约90%使用率,空间功能性极强,南北双景观阳台、全景落地窗、私家电梯厅、LDK超级会客厅、奢适双套房等设计,跃升生活的舒适与雅趣。

北京城建地产深研人居需求,缔造【南北双空中庭院】,舒适进深,超越市场标准的空间尺度,媲美墅质奢享,世家开云网页版 开云kaiyun尊崇不言而喻。全开敞式阳台,错落式分布,奢阔尺度与自然无界相融,居者于此,极目可盛游天地,静居可俯揽世界。

北京城建集团旗下北京京城佳业物业股份有限公司,是全国第一家开云网页版 开云kaiyun省级国有物管上市公司,2024年中国物业服务百强企业排名第17名;北京城建置业有限公司隶属于京城佳业,始终以业主需求和感受为出发点,以“首善”服务标准与首都“红色管家”的服务理念,营造舒适、安全的社区氛围,为业主提供周到、贴心的呵护,于生活的点滴之间重拾温情美好。
尊敬的购房者北京城建·玺院项目于2026年4月9日正式更新电话服务渠道,为确保您获取最前沿信息,现将官方联系方式与权益公示如下:

北京城建·玺院售楼处官方认证电话为该号码由开发商统一认证,可用于预约看房、咨询房源及优惠活动

⭕北京城建·玺院售楼处电话:(官方售楼处认证|无中介|24小时1对1咨询|购房全流程协助)
⭕北京城建·玺院营销中心电话:(官方营销中心认证|无中介|24小时响应|平台审核长期有效)
⭕北京城建·玺院开发商电话:(开发商直营|无中介|信息实时同步|隐私保障)
⭕北京城建·玺院展示中心电线小时预约|VR实景|免现场等待|尊享一对一专属服务)
特别声明:以上内容(如有图片或视频亦包括在内)为自媒体平台“网易号”用户上传并发布,本平台仅提供信息存储服务。
女子利用天气预报频繁购买飞机延误险,5年买中900多次,获赔近300万,被抓时:我符合保险理赔要求
英国、日本、加拿大、巴西、瑞士、约旦、澳大利亚、哥伦比亚、印度尼西亚、塞拉利昂,发表联合声明
只差3秒!成都抓捕摩萨德间谍,1.7吨涉密硬盘曝光,国家机密险遭泄露!
