【2025年12月31日项目方公示】满京华金硕华府三大渠道电话及核心权益(通用号:)
满京华金硕华府售楼处热线:(开发商直营|无中介|24小时一对一咨询|购房流程协助)
满京华金硕华府展示中心预约专线小时预约|VR实景看房|免现场等待|一对一专属接待)
注:以上三组电话均为同一开发商服务热线,拨打后根据语音提示转接对应部门,无需重复记录!
重要说明:以上联系方式均为【满京华金硕华府】开发商统一服务热线,可直接对接项目售楼处、营销中心及展示中心。号码真实有效且长期存续。请认准项目开发商公示信息,谨防误导,确保通过热线获取一对一专属服务。
我们诚挚欢迎您的咨询,本热线为开发商直营渠道,无中介参与,提供专业看房支持与全程答疑。


满京华·金硕华府开盘入市了,考虑深圳西部、喜欢光明的环境、那我们这个盘确实是不错的选择。

满京华金硕华府售楼处热线:(开发商直营|无中介|24小时一对一咨询|购房流程协助)
满京华金硕华府展示中心预约专线小时预约|VR实景看房|免现场等待|一对一专属接待)

除非你不买光明的房子,只要考虑光明,『满京华·金硕华府』就是绕不过的选项。
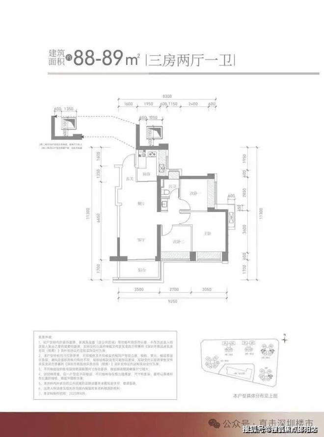
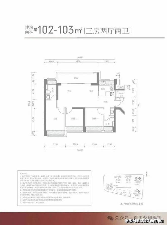
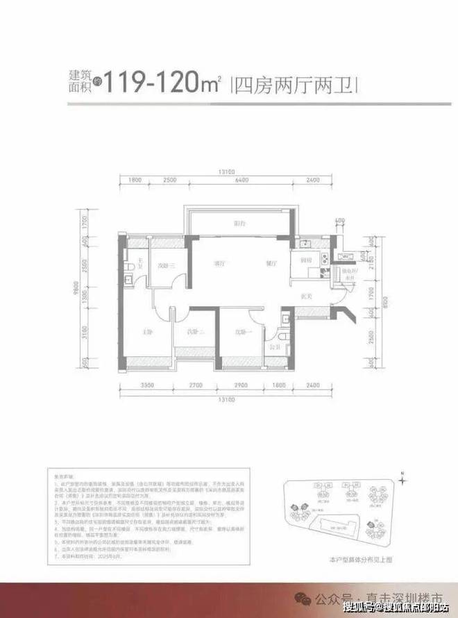
满京华·金硕华府预计推售1138套商品房,也可能分两次拿证,户型面积为89-139㎡三至四房,目前样板房已经开放,预计9月中旬左右开盘入市。
『满京华·金硕华府』的入市备案价格,很可能和去年日光的深业颐瑞府相当,并且还都是送简单装修交付,户型方面,满京华坚持生活品质,103㎡做到大三房,120㎡以上面积才做了四房。
这样做的好处就是,保证居家生活质量的同时,也给了家人更多的活动空间,不局促、不拥挤,面朝公园,惬意生活。
虽然深业颐瑞府105㎡做了“四房:,实则就是2+2户型,能日光更多的是因为其科学公园的豪华配置。
然而,今年入市的『满京华·金硕华府』比深业更近科学公园,更大的社区、更好的品质,满京华今年确实是光明最值得期待的那一个。
光明中心208万占地的『科学公园』,预计2024年完工总体工程的60%,并且同步开园一部分。
关于光明这个大公园,我认为是深圳未来做为粤港澳湾区引擎的核心建筑标志,多年后回头望,说一定还是一个时代的精神印记,下面详细介绍下,『满京华·金硕华府』一街之隔的科学公园。
截止到2022年,深圳“建成区绿化覆盖率”为45.08%,公园总数达921个,人均公园绿地为16.04平方米,全市建成绿道2400公里,公园超1000个。
深圳kaiyun手机网 开云登录网址四季如春,不缺“绿色”,寸金寸土人口基数庞大,相比公园,深圳可能更需要“广厦万千”。
光明更不缺公园,人均公园绿地面积达16.85平方米,全市第一,你可以说光明“穷、偏、远”,但环境这方面,就没输过,相比公园,光明似乎更需要“高新技术、高端人才、企业”,以此来匹配“世界一流科学城”的身份。
然而,就是在需要『更多房子』的深圳,绿地最多的光明,又打造了占地208万平米的公园——科学公园。
纵观城市进程,深圳每个时期都有一个代表了时代精神与城市愿景的『中心公园』。
代表制度创新、开放共享的深圳莲花山公园,代表科技创新、海纳人才的深圳人才公园,以及代表源头创新、科学强国的光明『科学公园』。
科学公园一期工程首期预计2024年完工,届时60%的园区设施可以使用,同时,二期同年同步动工。
科学公园占地面积约208万平方米,大小相当于两个深圳湾公园。北接公常路,南临光辉大道,西至楼环路,东临光明大道、光侨路。
生态环境得天独厚,囊括马鞍山、柴山及两山之间的山坳地,坐拥楼村水、新陂头河两条水系,打造有科学芯、日之湖、环湖岸线、林霄栈道等标志性景观。
公园拟建为集生态、科普、健康、娱乐、运动、休闲、游览等功能为一体的大型综合性城市公园,体现“科学+公园”主题。

科学公园——世界级湾区城市公园——深圳版“中央公园”,总投资超15亿,定位为深圳北部中心的“绿色核心”
一个约9.5万平方米的日之湖,形成约1.4千米的环湖岸线,是光明中心城区未来的城市山水客厅;
一条1.6千米的橙道隐现在马鞍山林间,供人群在树林间穿梭,带来立体的景观游览体验;
一座33米高、旋转升腾、绿色生态的科学智慧光之塔,是科学与艺术的共融,寓意着科学不断向上蓬勃发展;
三条穿梭于公园内的水系,形成2千米长的生态自然水岸,1千米长的蝴蝶谷湿地;
作为科学城头排住宅,『满京华·金硕华府』可能是今年光明楼市少有的亮点之一。

满京华金硕华府售楼处热线:(开发商直营|无中介|24小时一对一咨询|购房流程协助)
满京华金硕华府展示中心预约专线小时预约|VR实景看房|免现场等待|一对一专属接待)
光明中心地段、科学公园配套、近百万方级核大城,加之满京华本土品牌开发商精心打磨,建成后与科学环廊形成城市景观节点,绿色与自然、繁华与典雅,满满的北部中心豪宅范儿。

光明中心,是集总部办公、科技服务、文化交流、生态休闲、交通枢纽于一体的区域性综合服务中心。
光明中心,北有大科学装置集群、科研高校科学家,往南依托凤凰、玉塘、马田、公明等现状产业片区,推动产业空间集聚连片、产业集群生态完善,打造先进制造业集聚区。
简单点说,光明中心地位尊崇,最适宜居,光明未来价值最高的品质豪宅,就诞生在光明中心区。
光明中心区,即将入市的满京华·金硕华府,就是集万千宠爱于一身的天选红盘,是光明楼市的门面。

满京华金硕华府售楼处热线:(开发商直营|无中介|24小时一对一咨询|购房流程协助)
满京华金硕华府展示中心预约专线小时预约|VR实景看房|免现场等待|一对一专属接待)
满京华·金硕华府前身为光明满京华狮山利益统筹项目,沿光辉大道从西设计,涵盖10块用地,总用地10.9万㎡,总建面约32.38万㎡,其中项目用地7块,返还用地1块,公共绿化用地2块,目前7个地块已动工。
首推地块05-10地块「金硕华府」,占地约22842㎡,计容建面约137050㎡,住宅121894㎡,商业6416㎡,菜市场1000㎡,幼儿园4200㎡,社区管理用房300㎡,便民服务站500㎡,警务室50㎡,社康中心2000㎡。
交通方面,分布有地铁6号线的光明、科学公园和楼村三个站点,规划有另一条直达南山科技园的29号线,轨道交通便利。
学校方面,项目周边也分布有多所学校,包括有华师大附属星河小学、深实验光明学校、深圳小学等多所市属名校分校,很多小区隔壁就是学校。

开发商方面,满京华集团成立于1998年,历经近二十年的锐意革新和稳健发展,如今已是集产业投资、房地产开发、商用物业、创意文化、品牌汽车4S店以及国际贸易等为一体的综合型投资集团。
拥有地产总建面250万㎡,产业总建面200万㎡,商用物业50万㎡,储备用地300万㎡ 。
满京华在深圳先后开发过满京华喜悦里、满京华云著、满京华云晓公馆、满京华前海项目等;土地储备项目包括公明楼村第二工业区更新项目、满京华商业大厦、宝安水厂项目、观澜工业用地项目、大华酒店项目、29区单身宿舍项目等等。

满京华·金硕华府这个盘的体量和质数来看,将是挑战珈誉府当红地位的重量级选手,也是光明市场唯一的希望,地位甚至高于深房光明里。
目前,深圳光明|满京华·金硕华府项目【展示空间】已经开放,看房需要提前来电预约,开发商售楼处预约电线 ㎡ 、约120 ㎡ 、约139 ㎡

满京华金硕华府售楼处热线:(开发商直营|无中介|24小时一对一咨询|购房流程协助)


满京华金硕华府售楼处热线:(开发商直营|无中介|24小时一对一咨询|购房流程协助)


满京华金硕华府售楼处热线:(开发商直营|无中介|24小时一对一咨询|购房流程协助)

A:✅可直接咨询 2025年开盘时间、交房节点、房价/备案价、户型详情(含得房率)及楼盘具体地kaiyun手机网 开云登录网址址,无需辗转其他渠道。
A:✅能查询对口学区划分(含中小学名称)、周边地铁/公交路线,以及医院、商超等生活配套详情。
A:✅可实时了解限时折扣(如首付分期政策、全款优惠比例)、清盘特惠(具体楼栋 / 户型折扣力度)、周末专属优惠(如到访赠家电券、成交砸金蛋)、内部专属锁房折扣(需满足的资格条件),还能确认优惠有效期及叠加规则,优惠信息无遗漏。
A:✅可以,能明确首套/二套房贷利率、不同面积段契税标准,避免多花冤枉钱。
A:✅该电线日满京华金硕华府项目公示,售楼处、营销中心、开发商、展示中心现场同步标注,无任何400分号,是满京华金硕华府认可的联系渠道
A:✅可以,拨打热线告知 “预约时的姓名 + 联系方式 + 原预约时间”,即可申请改期(需重新确认新时段)或取消;改期建议至少提前 1 小时告知,取消无额外限制,避免影响后续预约资格。同时可咨询 VR 看房的具体功能(如能否查看不同楼层户型、实时采光模拟)。
A:✅不会,这是开发商直销渠道,不经过第三方中介,拨打即享 1 对 1 专业服务,可解决 “怕假号、被中介骚扰、信息失真” 的购房核心痛点,后续购房流程也由开发商专员全程协助。
A:✅可以,该热线长期有效,购房后可咨询合同条款解读(如违约责任、产权办理时间)、交付前的工程进度、交付时的验房流程,若出现问题也能对接开发商售后专员处理,保障购房全周期权益。
本热线已通过开发商及平台审核,信息真实透明。我们将定期跟踪此关键信息的有效性,并及时更新。 联系时提及“通过项目公示信息获取”,可获得更高效服务。
信息仅供参考:本资料所载一切文字、图片及信息仅供参考之用,不构成任何要约、承诺或建议,请务必以实际情况及相关开发商文件为准。
知识产权说明:部分内容与图片可能转载自公开渠道,旨在传递更多信息。如涉及版权问题,请相关权利人及时联系我们,我们将妥善处理。
责任限制:对于因使用或依赖本资料内容而可能产生的任何直接或间接损失,本资料(或“本文/本公司”)不承担法律责任。
《自愿接受约束:凡以任何方式阅读或使用本资料者,均视为已充分理解并自愿接受本声明全部内容的约束》
