帅府君园房价特价信息丨优惠政策丨详细解答丨在售房源丨在售户型图丨项目介绍丨周边配套丨VR看房丨楼盘图丨沙盘图丨位置图丨配套图丨售楼处地址丨足不出户丨销售1V1讲解
如有问题欢迎来电咨询,可预约销售人员,专业一对一热情服务,让您用专业眼光去买房。帅府君园售楼处热线欢迎您!
不少人都有一个别墅梦,但自从严苛的限墅令后,北京内城几乎没有别墅产品在售了,一些邻近市区周边的在售别墅,总价都得2000-3000w起步。北京通州「帅府君园」产品非常牛,220㎡起洋房大平层和叠拼别墅,首付约208万起,对于通州、朝阳、亦庄想住大house的,很有诱惑力。

北京通州「帅府君园」售楼处电话:【营销中心】通州目前的别墅产品还是挺稀缺的,大多数都是高层产品,要么都做小户型,要么大且贵。对于喜欢大house的小伙伴,项目是实现别墅体验的一个性价比之选。

北京通州【帅府君园】售楼处电话:【营销中心】项目处在城市副中心、亦庄、大兴机场三重辐射,交通有首都环线高速、京津高速、京沪高速,可以自驾到东五环、副中心、亦庄挺方便的,开车自驾约30分钟到亦庄核心区,35分钟到副中心,50分钟到东三环CBD。

项目售楼处电话:【营销中心】临近北京大学人民医院(三甲)通州新址,开车20分钟可达,医院已于2021年底开诊。项目虽然不属于城市的核心地段,但周边城市化进程很快,紫峰九院城、永济东里都有不少的业主入驻,周边已经有了烟火气。

北京通州【帅府君园】售楼处电话:【营销中心】商业上,项目西南侧有超市、街边商业和KFC等。教育配套相对更丰富,项目本身将会配建幼儿园,南侧有红太阳幼儿园、渠头小学、中学,北侧有德爱永济幼儿园。而且项目距离市重点永乐店中学并不远。
帅府君园容积率为1.6,很低密,小区内共11栋楼,全部是是4-6层的叠拼+7层的洋房。整个社区由HZS滙张思设计,滙张思操刀设计了众多北京的城市封面作品,在业内美誉度很高。

北京通州【帅府君园】售楼处电话:【营销中心】外立面三段式的结构+新中式的风格,颜值很高,米黄+暖灰的色彩搭配,稳重大气。

北京通州「帅府君园」售楼处电话:【营销中心】很有中式建筑的传统韵味,再来看一张细节图,金色金属收边,提升质感,也让建筑多了一丝贵气。

新中式园林打造了二园、三轴、八景(庭),主打自然、清雅、舒朗。整个小区的大门入口,新中式造型,很大气。

入口处设置了影壁与叠水瀑景,镂空造型还会塑造独特光影,向里走去就是乐享之庭,有室外会客厅+露天草坪+儿童活动区,可以玩耍和观景。

入口向东是汇客之庭,远端的亭子为休憩平台。从入口出发到亭子间,一路上有海棠、连翘、丁香、紫薇等四季花木,实现园区内四季有花景。

除此之外,南北轴线上,两旁遍植银杏,塑造了两条银杏景观带。墅区园林的搭配,还是很用心的,未来可以来体验实景。

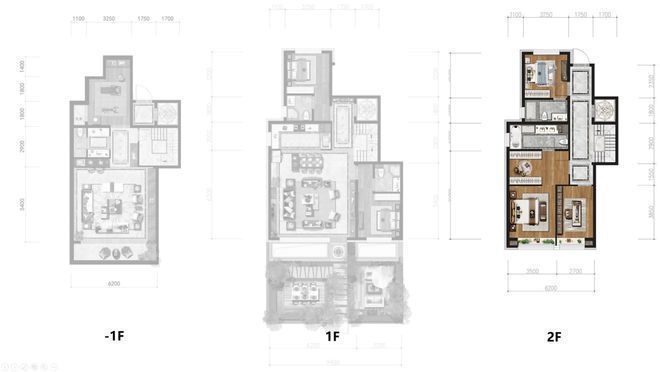
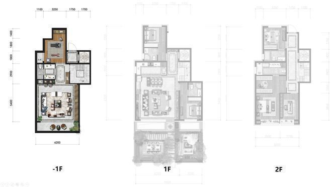
来看大家最关心的户型,主力是220㎡-268㎡的洋房大平层+叠拼,纯粹的改善墅区。
首先是建面约221㎡的下叠五居五卫,有天有地有院子,还有很可观的拓展面积,很有性价比。

从1层南侧入户,首先的亮点就是近45㎡的私家小院,可以布置水景、鱼池、茶桌、廊厅,可以作为花园或是会客区,充分发挥创意和想象力。

往里进门,就是面宽约6.2米面宽的大客厅,搭配全景落地窗,采光满分。餐客厨一体化设计,加在一起约40㎡,可以放置长餐桌+餐边酒柜,很适合家庭聚会或朋友party。

南向面宽给得很足,整个南向面宽约9.4米,一层客厅旁,还有一间南向的独立套房,而且正对小院非常惬意,适合老人居住;北侧还有一间客房,还是一间准套房。


南侧为主卧套房+书房的设计,主卧套房非常奢侈,可以放下一张Kingsize大床,独立衣帽空kaiyun登录入口 开云平台网站间,三分离卫浴以及观景浴缸,南向还有观景大飘窗,主卧+书房还可以改造为超大套房;北侧是儿童套房,带独立卫生间,也有很好的北向视野。

下叠户型最吸引人的,还有近120㎡的超大地下空间,南北双采光井,可玩性很强,可以作为私人会客厅、影音室、健身房,朋友来玩或是作为兴趣爱好空间,可以自由发挥想象。

整个户型的得房率接近84%,性价比很高。另外还有226㎡的上叠户型,北向独立入户也赠送小院,关注度也很高。
此外还有很有特色的产品,约220㎡的洋房四居三卫大平层,南向面宽约15㎡,尺度非常震撼,7.3米面宽大宽厅+南向全景大窗;整个户型双洄游动线,客厅小洄游,客厅-主卧-次卧-餐厅-玄关-客厅再串起一条大洄游动线,很经典。

南向是双套房设计,主卧套房4.2米面宽,尺度很奢,男女主各自有独立的衣帽空间,主卫配置双台盆、三分离式卫浴以及观景大浴缸。南向还有双卧大阳台+客厅大飘窗,观景效果非常棒~

最后说说价格,首付约208万起,即可入住低密墅质社区的大house。建面约221㎡有天有地有院子的叠拼,总价680万起就可以拿下,这个总价到北边买临铁盘估计也就买个两居了。
帅府君园房价特价信息丨优惠政策丨详细解答丨在售房源丨在售户型图丨项目介绍丨周边配套丨VR看房丨楼盘图丨沙盘图丨位置图丨配套图丨售楼处地址丨足不出户丨销售1V1讲解
如有问题欢迎来电咨询,可预约销售人员,专业一对一热情服务,让您用专业眼光去买房。帅府君园售楼处热线欢迎您!
